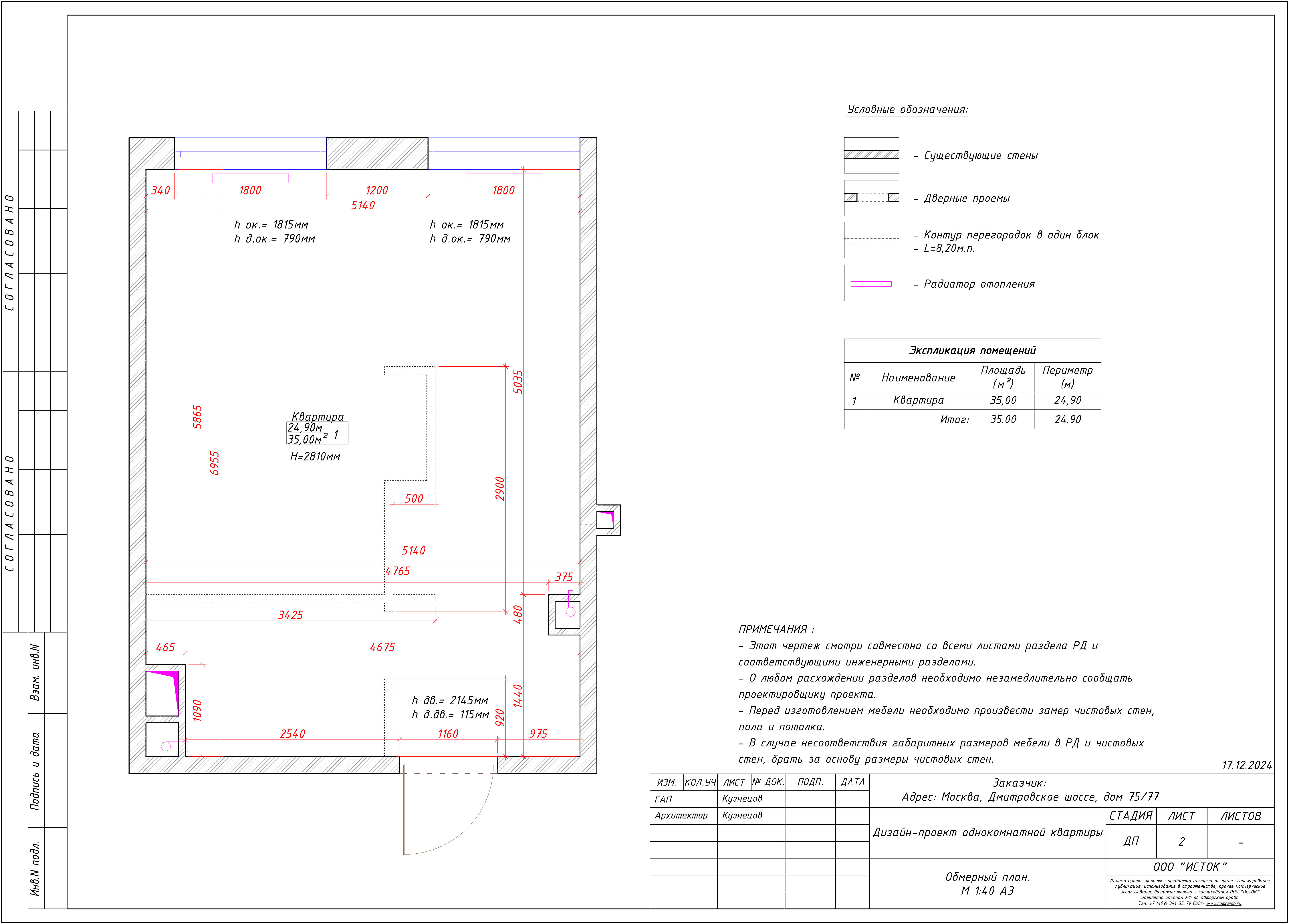
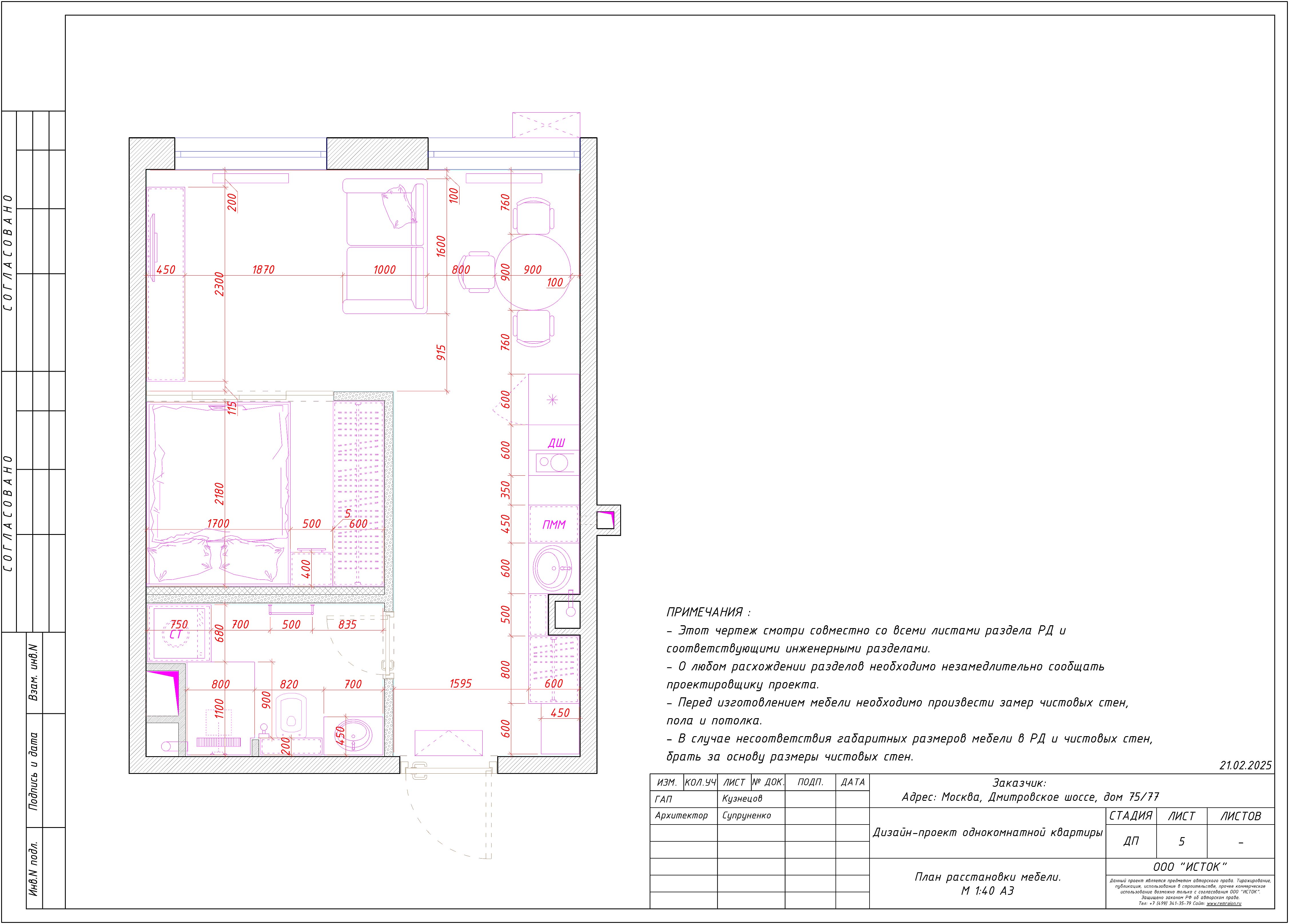
Место расположения Москва, ЖК Кинетик Количество комнат 1 Общая площадь квартиры 35 Серия дома Индивидуальная Год реализации 2024 Перечень помещений Спальня, Кухня-гостиная, Ванная, Прихожая, Спальня-гостиная Заключить договор Проект дизайна однокомнатной квартиры в ЖК Кинетик Проект дизайна однокомнатной квартиры в ЖК Кинетик. Визуализация дизайна квартиры. Проект дизайна интерьера однокомнатной квартиры. Чтобы заказать оформление интерьера вашей квартиры нажмите на кнопку ниже. Заказать проект дизайна квартиры Раздел: Дизайн квартир