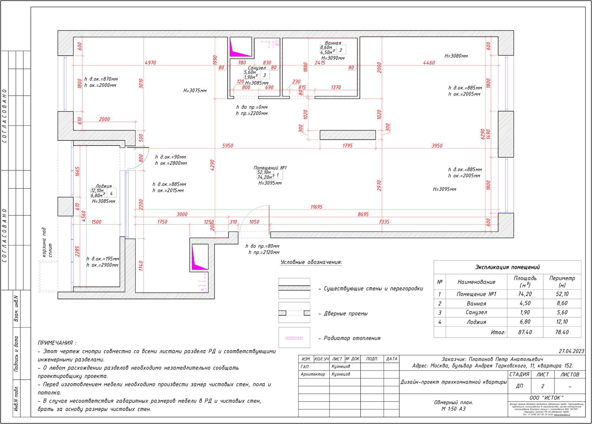
Проект дизайна ремонта трехкомнатной квартиры в ЖК Рассказово

Место расположения ЖК Рассказово
Количество комнат 3
Общая площадь квартиры 87.4
Серия дома Индивидуальная
Год реализации 2023
Перечень помещений Спальня, Кухня-гостиная, Ванная, Санузел, Гардеробная, Прихожая, Коридор, Кабинет
Ссылка на ремонт Выполненный ремонт
Проект дизайна ремонта трехкомнатной квартиры в ЖК Рассказово

Проект дизайна ремонта трехкомнатной квартиры в ЖК Рассказово.

Визуализация дизайна квартиры.

Проект дизайна ремонта трехкомнатной квартиры в ЖК Рассказово.

Чтобы заказать оформление интерьера вашей квартиры нажмите на кнопку ниже.


Top.Mail.Ru