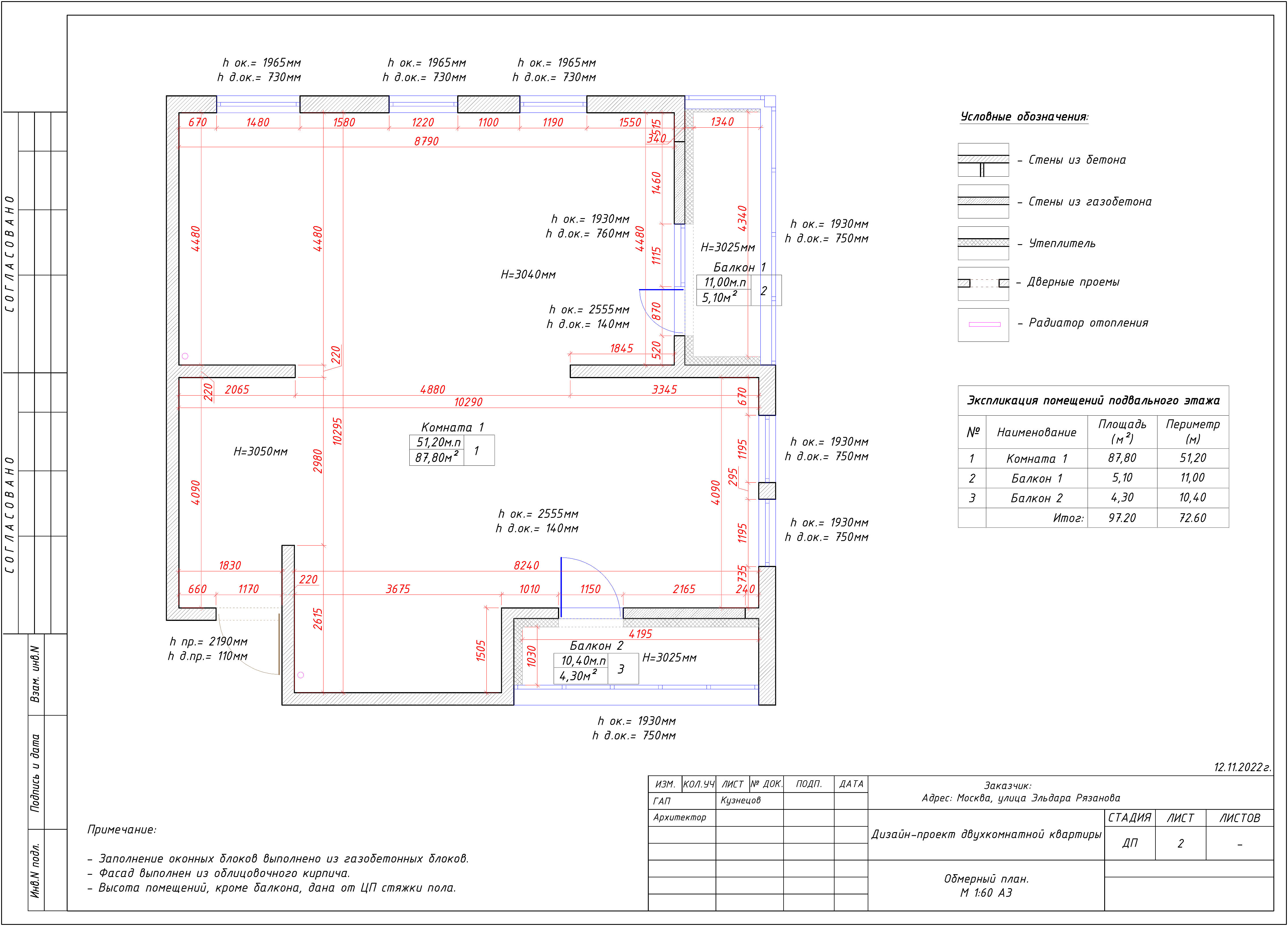
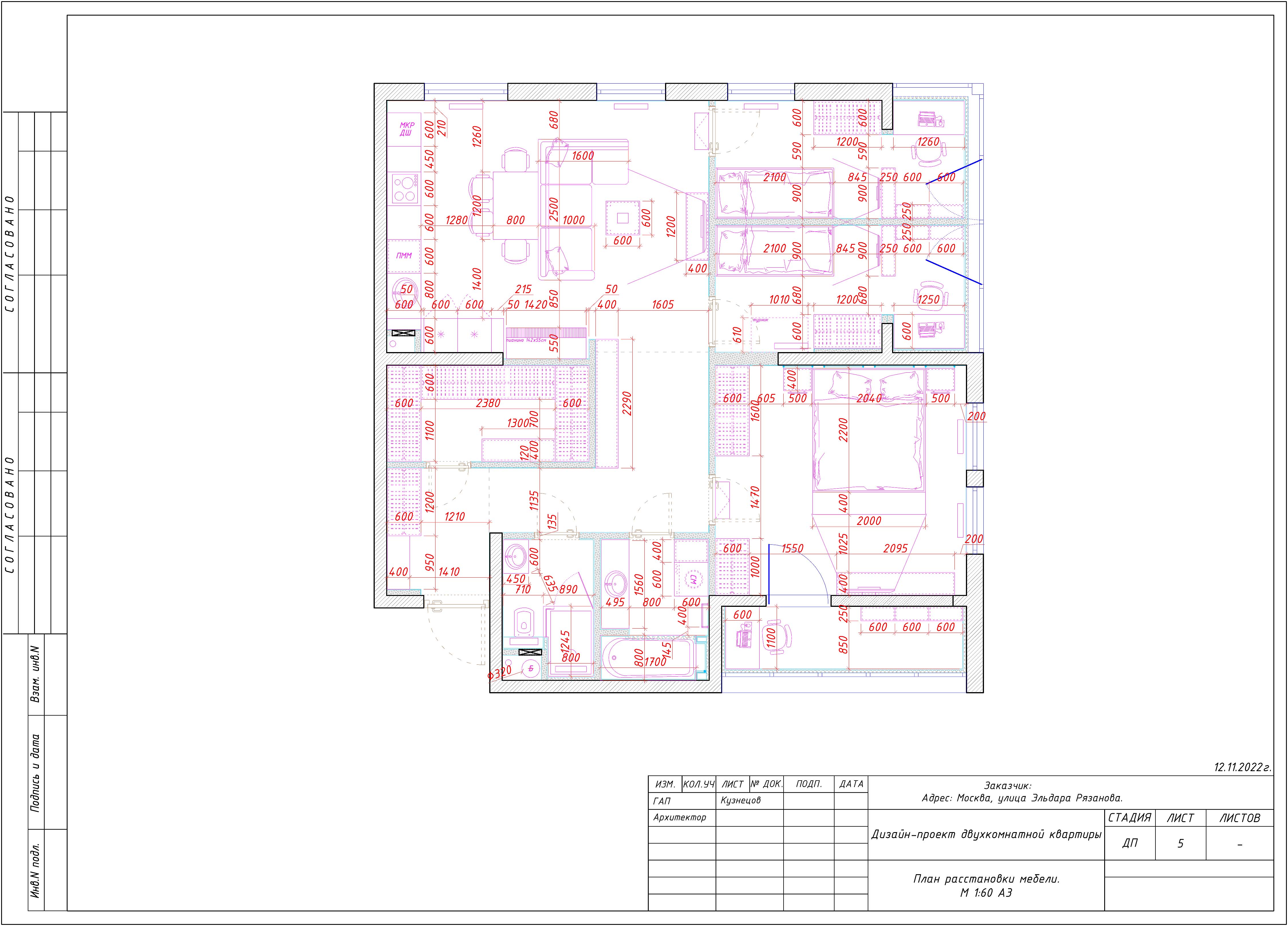
Трехкомнатная на Эльдара Рязанова

Место расположения город Москва
Количество комнат 3
Общая площадь квартиры 97,2
Серия дома Индивидуальная
Год реализации 2022
Перечень помещений Спальня, Детская, Кухня-гостиная, Ванная, Санузел, Гардеробная, Прихожая, Коридор, Лоджия
Проект дизайна трехкомнатной квартиры на Эльдара Рязанова

Проект дизайна трехкомнатной квартиры на Эльдара Рязанова.

Визуализация дизайна.

Проект дизайна интерьера трехкомнатной квартиры.

Чтобы заказать оформление интерьера вашей квартиры нажмите на кнопку ниже.


Top.Mail.Ru